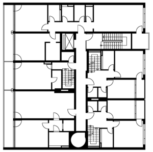
Potsdamer Straße 74, Berlin
- Projektstandort: Potsdamer Straße 74, 10785 Berlin
- Projektzeitraum: 2019 - jetzt
- Projektumfang: 69 WE und Tiefgarage
- Maßnahmen: Sanierung, Dachaufstockung & Neubau
- Auftraggeber: M & B Invest GmbH
- Leistung: LP 1 - LP 9 HOAI
- Kosten: 8,4 Millionen Euro
- Projektstand: in Bearbeitung



